Проект 21185
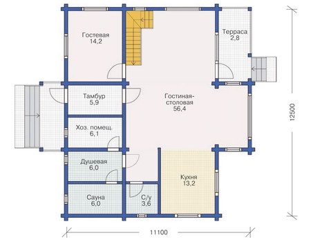
Площадь - общая: | 199.40м2 | |
Площадь - жилая: | 110.00м2 | |
Габаритные размеры: | 11.10 x 12.50 | |
Кол-во комнат: | 3 | |
Количество этажей: | 1 этаж + мансарда | |
Фундамент: | монолитный ж/б | |
Материал стен: | клееный брус | |
Материал перекрытий: | по деревянным балкам | |
Материал кровли: | металлочерепица | |
Отделка фасада: | тонировка | |
Комплектация проекта: | АР, КР | |
Стоимость проекта: | 000 грн. |
Смотрите также
Строительство дома
Дом-«улей» и дом-«летающая тарелка»
Долговечный, энергоэффективный, комфортный для жизни, вместе с тем с необычной архитектурой фасадов, самобытный – именно такой дом можно построить, применяя инновационные технологичные материалы.
Проект и согласование
Услуги по приобретению права собственности или пользования (аренды) земельным участком
Регистрация права собственности и права пользования на земельные участки - это официальное подтверждение таких юридических фактов, как возникновение и прекращение права, а также переход прав.
Вынос в натуру границ участка
Для точного определения координат используются тахеометры и спутниковая навигация.
Инженерия
Как выбрать кондиционер для разных помещений?
Сложность решения также сводится к огромному ассортименту предложений. С одной стороны это очень хорошо, а с другой – просто сбивает с толку покупателя. В таких случаях, чтобы купить кондиционер удобно использовать многофункциональный сервис поиска товаров в интернет-магазинах E-Katalog, где...
Как сделать поверхностный водоотвод
Поверхностный водоотвод легко можно обустроить своими руками. О том, как это делать, и что следует использовать, далее.
Комментарии
Оставить комментарийВы не зарегистрированные на сайте. Авторизуйтесь или зарегистрируйтесь пожалуйста.